濰坊一體化預制泵站主要是將各類生活污水,工業廢水,醫療廢水,食品加工廢水等各類廢水進行收集,運輸到專門處理的污水廠中。由于這些污水大多是不能依靠自身的重力進行運輸和處理的就容易造成水環境的污染散發難聞的氣味影響周邊居民,所以需要一體化預制泵站。
一、設備構造
一體化預制泵站的密封性是非常好的。它的筒體大多采用的是玻璃鋼材質采用優質玻纖,韌性好,不斷絲,無滲漏。它是高度集成的系統無論您需要的是干式還是濕式泵坑,亦或兩者結合,我們都可以按照要求精確制作,并一體化運輸,包含泵。管道、閥門、控制系統、液位監測裝置等。
而且一體化預制泵站施工量小且施工周期短,一般一周內即可完成安裝;同時配備先進的專用監控系統,可實現泵站遠程控制且無人值守。可廣泛安裝于室外、綠化帶、道路等場所。尤其在施工作業面小、人口密度大、建筑集中的地方更有優勢且前期成本和后期維護保養費用較低。
一體化預制泵站搭載高效粉碎格柵機,通過高硬度合金刀具的同向切割作用, 將污水中的大粒徑顆粒物進行切碎,防止固體垃圾造成水泵的堵塞及損毀,影響污水處理的效率。IP68防水電機,讓產品使用更加安全,對于固體雜質較少的水體,可以選擇提籃式格柵,以減少購置及使用成本。
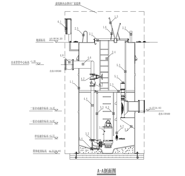
一體化預制泵站將泵、管道、控制系統和通風系統等集成為一體,并在工程預制生產,用于提升和輸送水介質的泵站。泵站主體由筒體、水泵、提升裝置、管道、閥門、格柵、液位傳感器、控制系統和通風系統等部件組成。
二、一體化預制泵站技術原理
一體化預制泵站在歐洲有超過60年的研究、開發和使用歷史,已成為歐洲市政給水、排水泵站的主要解決方案。近10年來,隨著一體化預制泵站在世界范圍內的推廣,已經遍布世界各地,為各地提供服務。那么,接下來,技術人員就來給大家科普一下一體化預制泵站。
濰坊一體化預制泵站外殼為筒體,內部用一根內井筒代替內部管道,水泵安裝在內井筒中,水流從進水口進入筒體,經過筒體底部的整流板后進入內井筒,經過水泵加壓后,沿著內井筒向上打到出水口。
三、一體化預制泵站技術特點
所謂一體化預制泵站(又稱:一體化混凝土澆灌泵房)是指采用整體結構型式設計的水泥砂漿輸送設備系統。濰坊一體化預制泵站包括有固定式和移動式兩種類型;其中固定式的由底座和上部鋼結構組成,可安裝在地面或地下的基礎上;而移動型的則是由底盤及行走機構組成的箱形裝置,其底部設有滑輪軌道與底板連接并可在其上行駛。
1、相比傳統混凝土泵站,工廠預制,占地面積小,建設周期短。
2、智能化程度高,自動控制及監測運行狀態,可以實現遠程監控、無人值守。
3、設備運行振動低,噪音低,故障率低,維保成本低。
3.一體化預制泵站技術標準
(1)《一體化預制泵站應用技術規程》(DB33/T 1110-2015);
(2)《一體化預制泵站應用技術規程》(CECS407:2015)。

四、一體化預制泵站應用范圍
一體化預制泵站主要適用于水源水取水,防洪排澇,以及雨水、污廢水輸送等水利、市政領域。


