樹脂混凝土一體化預制泵站是一種新型的一體化泵站,采用樹脂混凝土作為主要材料制成。樹脂混凝土是一種由合成樹脂、填料和骨料等混合而成的新型復合材料,具有高強度、耐腐蝕、耐磨損、抗滲性好等顯著優點。這使得樹脂混凝土泵站能夠在惡劣環境下長期穩定運行,且維護成本較低。
一、泵站定制需提供的數據:
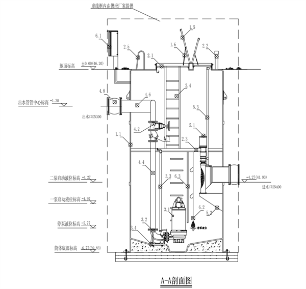
1 泵站入流量Q(噸/天),時變化系數
2 所需水泵的數量和揚程,一用一備或二用一備
3 室外地坪標高H0(米),也可使用相對標高±0.00(米)
4 進水管外接管底標高H1(米),進水管外接管徑DN
5 出水管外接管中標高H2(米),出水管外接管徑DN
6 所選格柵類型,提籃格柵或粉碎格柵
7 電控箱型式,室外防雨控制柜或景觀式管理房

二、主要組成部分
樹脂混凝土一體化預制泵站主要由以下幾個部分組成:
?筒體?:采用樹脂混凝土制成,具有高強度、耐腐蝕和耐磨損的特性。筒體通常采用圓筒形設計,具有良好的抗壓能力和穩定性,同時便于運輸和安裝。
?水泵?:泵站的核心設備,通常配備高性能的潛水排污泵或離心泵。潛水排污泵適用于輸送含有固體顆粒和雜質的污水,而離心泵則適用于輸送清水或輕度污染的液體。
?格柵系統?:用于攔截污水中的固體雜質,防止堵塞水泵和管道。格柵系統包括機械格柵和提籃格柵等多種類型,可根據實際需求選擇。
?控制系統?:用于控制水泵的啟停、格柵的運行以及液位的監測等。現代樹脂混凝土泵站的控制系統通常具有智能化功能,可實現遠程監控、故障診斷和自動調節等。
三、工作原理
樹脂混凝土一體化預制泵站的工作原理相對簡單且高效。污水通過進水口進入格柵系統,經過格柵攔截固體雜質后,進入泵站的筒體內。隨著污水的不斷進入,當筒體內的污水水位達到設定高度時,控制系統啟動水泵,將污水通過壓力管道抽送到出水口。出水口的管路與城市管網連接,實現污水的排放。當筒體內的污水排出至設定低液位時,水泵停止工作,出水止回閥關閉,防止污水回流。
四、應用領域
樹脂混凝土一體化預制泵站廣泛應用于以下領域:
?城市排水?:用于將污水、雨水等流體介質從低處輸送到高處,保證城市排水系統的正常運行。
?污水處理?:在污水處理過程中,用于將污水從收集池中輸送到處理設備中,或將處理后的水輸送到出水口。
?水利工程?:用于泵站、水閘、堤防等水利設施的配套建設,以及農田灌溉、水利發電等領域中的流體輸送。
五、設備選型
樹脂混凝土一體化預制泵站以其優越的性能在眾多領域嶄露頭角。其設計依據主要有以下幾點。
從材料特性出發,樹脂混凝土具有優異的耐腐蝕、耐磨損和抗壓性能。設計時充分利用這些特性,根據不同的使用環境和介質,選擇合適的樹脂混凝土配方,確保泵站在長期使用過程中保持良好的性能。例如,在化工行業,面對腐蝕性較強的介質,需要選用耐腐蝕性更高的樹脂混凝土材料。
流量和揚程的確定是設計的核心依據之一。根據泵站所服務的區域范圍、排水需求以及后續處理設施的要求,精確計算泵站的流量和揚程。這需要對區域內的雨水、污水產生量進行詳細調研和分析,以確保泵站能夠滿足實際運行需求。
安裝環境同樣影響著樹脂混凝土泵站的設計??紤]土壤條件、地下水位、周邊建筑物等因素,進行合理的基礎設計和布局規劃。在狹窄空間或特殊地形條件下,可能需要采用定制化的設計方案,以確保泵站的安裝和運行不受限制。
此外,安全標準和環保要求也是重要的設計依據。確保泵站的設計符合相關的安全規范,如防火、防爆等要求。同時,要考慮泵站對環境的影響,采取有效的措施減少噪音、防止滲漏等,實現綠色環保的設計目標。
六、一體化泵站安裝方式
根據不同的工況,從而采取不同的安裝方式,以的保證一體化泵站長壽命、高效率的運行。常規情況下,建議采用:
1 全內置基層濕井泵站的安裝方式,除此之外,還可以采用
2 外置閥門濕井泵站
3 干濕分開泵站
4 帶維修間泵站等安裝方式
客戶可根據設計或現場具體使用情況,決定一體化泵站具體安裝方式。
我公司夢之潔環保現可制作多種材質筒體:玻璃鋼一體化泵站、樹脂混凝土一體化預制泵站、HMPP一體化泵站、地埋式箱泵一體化消防泵站等,內部裝配水泵、格柵、管路、閥門、儀表、控制設備,以及維修設施等,確保系統的成本效益及運行可靠性。無論是在城市內澇防治還是雨水、污水收集處理等領域,一體化泵站有眾多成功運行案例。
更多關于一體化泵站的相關資料,可關注公司網站(www.czspfcw.cn)!



